Ngày 14-3, ông Chu Văn Long, đại diện Ban Quản lý dự án đường Hồ Chí Minh – chủ đầu tư dự án mở rộng cao tốc Cam Lộ - La Sơn đoạn qua TP Huế và tỉnh Quảng Trị – cho biết đơn vị đang rất sốt ruột vì chưa được bàn giao mặt bằng để thi công hạng mục nút giao với Tỉnh lộ 12B tại phường Kim Long, TP Huế.
Nút giao có quy mô ra sao?
Đây là một hợp phần thuộc Dự án mở rộng tuyến cao tốc Cam Lộ - La Sơn dài 98,73 km, trong đó qua TP Huế khoảng 62,72 km. Công trình được khởi công ngày 19-12-2025, dự kiến hoàn thành vào ngày 13-12-2026.

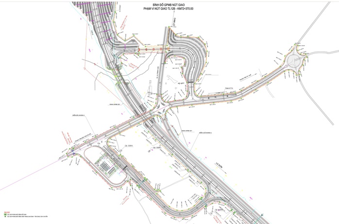
Bản thiết kế về nút giao hoành tráng giữa cao tốc Cam Lộ - La Sơn với Tỉnh lộ 12B qua Huế.
Theo ông Long dù có nhà thầu nhưng đến nay, chủ đầu tư vẫn chưa được bàn giao mặt bằng nên hạng mục này chưa thể triển khai thi công, ảnh hưởng đến tiến độ chung của dự án. "Đơn vị thi công rất sốt ruột, thậm chí đề xuất được tự ứng trước kinh phí để địa phương đẩy nhanh công tác giải phóng mặt bằng" – ông Long cho biết.
Nút giao với Tỉnh lộ 12B có tổng mức đầu tư khoảng 300 tỉ đồng, trong đó chi phí xây lắp khoảng 240 tỉ đồng và chi phí giải phóng mặt bằng hơn 54 tỉ đồng. Theo kế hoạch, hạng mục này phải cơ bản hoàn thành cuối năm 2026 để bảo đảm đồng bộ với tiến độ mở rộng toàn tuyến cao tốc Cam Lộ - La Sơn.

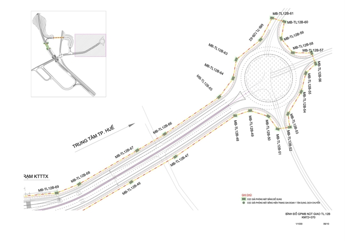
Thiết kế làn nhập và ra khỏi cao tốc Cam Lộ - La Sơn về trung tâm TP Huế.
Theo đánh giá của các cơ quan chuyên môn, khi hoàn thành, nút giao sẽ tạo thành trục giao thông quan trọng kết nối thẳng đến khu vực cầu Nguyễn Hoàng – công trình hạ tầng chiến lược đang được xây dựng ở phía Tây Bắc TP Huế. Tuyến kết nối này được kỳ vọng góp phần hoàn thiện mạng lưới giao thông, mở rộng không gian đô thị và thúc đẩy phát triển kinh tế - xã hội của địa phương.

Thiết kế thi công đoạn cầu vượt QL1 tránh Huế dài 4 nhịp I33.
Ông Lê Công Diễn, Phó Giám đốc Sở Xây dựng TP Huế, cho biết nút giao này được thiết kế với quy mô khá lớn, tương tự các nút giao hiện đại tại các tuyến giao thông trọng điểm như ở sân bay Nội Bài với Quốc lộ 5. Toàn bộ khu vực xây dựng phải thực hiện giải phóng mặt bằng nên khối lượng công việc rất lớn. Khi hoàn thành, tuyến cao tốc Cam Lộ - La Sơn đoạn qua TP Huế sẽ có tổng cộng 4 nút giao.
Theo ông Bùi Ngọc Chánh, Phó Giám đốc Ban Quản lý dự án đầu tư xây dựng khu vực 1 TP Huế – đơn vị thực hiện công tác giải phóng mặt bằng – hạng mục nút giao này ảnh hưởng đến 212 hộ dân, 3 tổ chức và khoảng 111 ngôi mộ ở phường Kim Long.

Sơ đồ phóng tuyến giải phóng mặt bằng hướng về nút giao cầu Nguyễn Hoàng.
Hiện UBND phường Kim Long đã ban hành thông báo thu hồi đất đối với 37 thửa đất ở và sản xuất kinh doanh cùng 73 thửa đất nông nghiệp của các hộ gia đình. Vẫn còn 105 trường hợp chưa thể ban hành thông báo thu hồi đất do chưa phù hợp với quy hoạch hiện hành và đang được các cơ quan chức năng rà soát, điều chỉnh.

Thi công mở rộng một cây cầu trên cao tốc Cam Lộ - La Sơn đoạn qua địa phận TP Huế.
Đối với đất nông nghiệp, cơ quan chức năng đã hoàn tất việc kiểm kê, xác nhận nguồn gốc đất và lập phương án bồi thường với tổng giá trị hơn 4,16 tỉ đồng. Trong số 111 ngôi mộ bị ảnh hưởng, đã xác định được thân nhân của 42 ngôi mộ; còn 69 ngôi mộ chưa có người đến kê khai.
Để bảo đảm tiến độ, Ban Quản lý dự án đường Hồ Chí Minh dự kiến tạm ứng khoảng 20% tổng giá trị bồi thường cho các hộ dân, tương đương khoảng 2,9 tỉ đồng, nhằm vận động người dân bàn giao mặt bằng trước khi hoàn tất các thủ tục phê duyệt.
Tại cuộc họp mới đây, ông Hoàng Hải Minh, Phó Chủ tịch UBND TP Huế yêu cầu các sở, ngành và địa phương liên quan đẩy nhanh tiến độ giải phóng mặt bằng phục vụ dự án mở rộng cao tốc Cam Lộ - La Sơn đoạn qua địa phương này. Các sở, ban ngành, địa phương phải kịp thời báo cáo những trường hợp vướng mắc để tháo gỡ.

1 month ago
33







